Langston Hughes Buffalo,NY This African American art institution has reinforced the Buffalo community for the pasty forty years. Invited by the Jeremiah Paternership, our office studied the Langston Hughes building in order to[...]
Portfolio Category: Historical Preservation
Buffalo Iron WorksBuffalo Iron Works
Buffalo Iron Works 49 Illinois Street Buffalo, NY This urban, two story masonry building was erected in 1915 and originally intended as a manufacturing facility in the Cobblestone District adjacent to the inner harbor development. Our agenda was to[...]
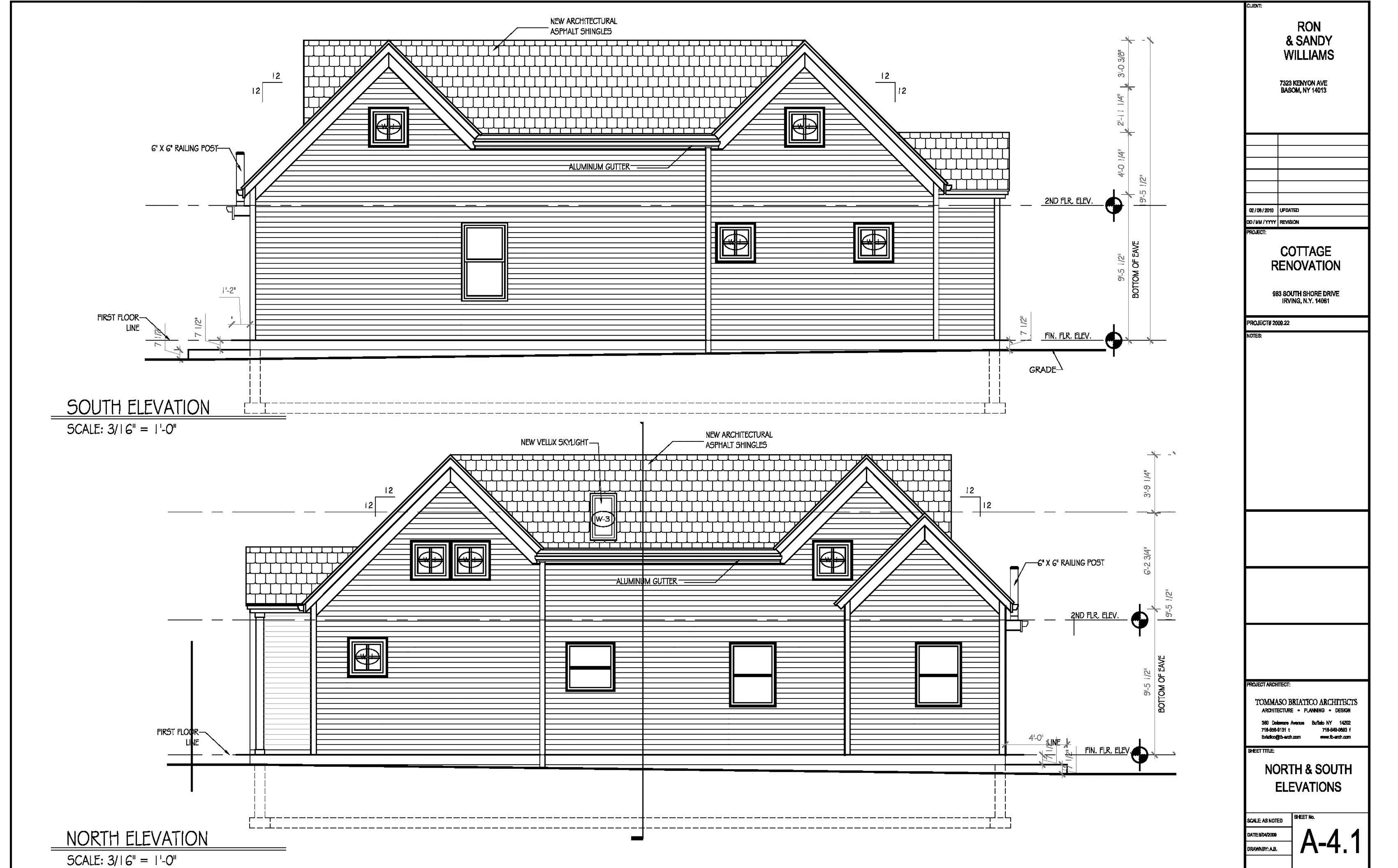
The Williams HouseThe Williams House
The Williams House Buffalo, NY Major Renovation of existing historical residence into 8 upscale apartments.[...]
Michael Doran Law OfficeMichael Doran Law Office
Michael Doran Law Office Historic Renovation Buffalo,NY[...]
Saint Anthony’s Roman Catholic ChurchSaint Anthony’s Roman Catholic Church
Saint Anthony’s Roman Catholic Church A strong regional example of historic preservation, the architectural work on this 1863 founded Roman Catholic Church centered on repairing and restoring this important City Hall[...]



